Проект реконструкции здания корпуса «Алмаз-Антей»

Административный корпус Концерн ВКО «Алмаз Антей»

Проект реконструкции здания корпуса Концерн ВКО «Алмаз Антей», расположенного по адресу: г. Москва, ул. Верейская, д.41, кор. 20.

Особенности проекта!

Проект реконструкции здания корпуса «Алмаз-Антей»

Задачи: Выполнить проект реконструкции административного здания корпуса Концерн ВКО «Алмаз Антей».

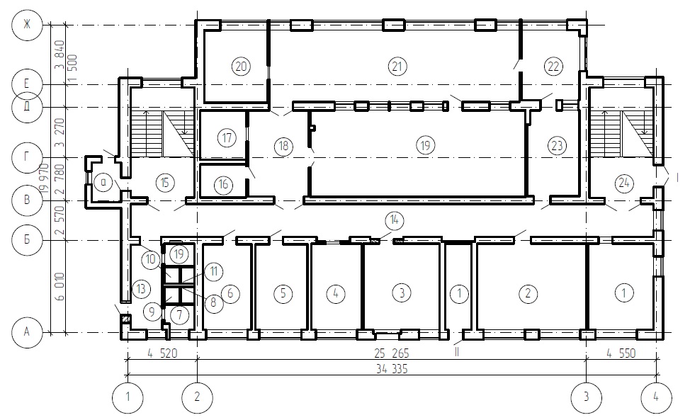
Сложности: Существующее здание трёхэтажное, без подвала, с чердаком. В плане имеет форму многоугольника.

Решения: Выполнены расчеты всех несущих конструкций, в рамках проведения реконструкции предусмотрены отделочные и ремонтные работы

Расположение:г. Москва, ул. Верейская, д.41, кор. 20.
Объект:Нежилое здание
Срок работ:25 дней
Заказать подобный проект

Заказать обратный звонок

оставьте завку и мы перезвоним вам в ближайшее время